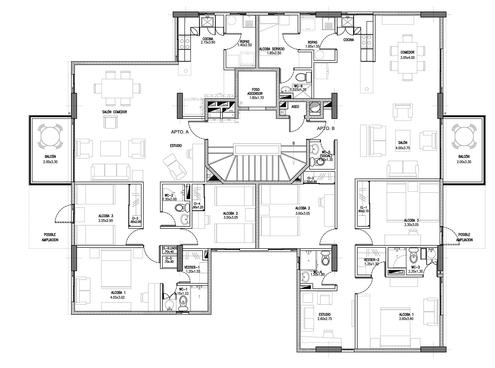
Edificio Moka: 16 apartamentos y oficina para Exaedro, en sector de Zúñiga Envigado 3.200 m² construidos.