• Inicio
  • Presentación
  • Urbanismo
  • Vivivenda
  • Comercio y Servicios
  • Casas
  • Contacto
  • Política de tratamiento de datos

Posted on 28/02/2018 by Exaedro

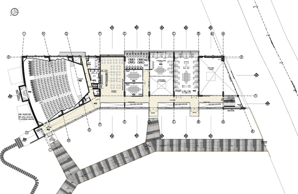
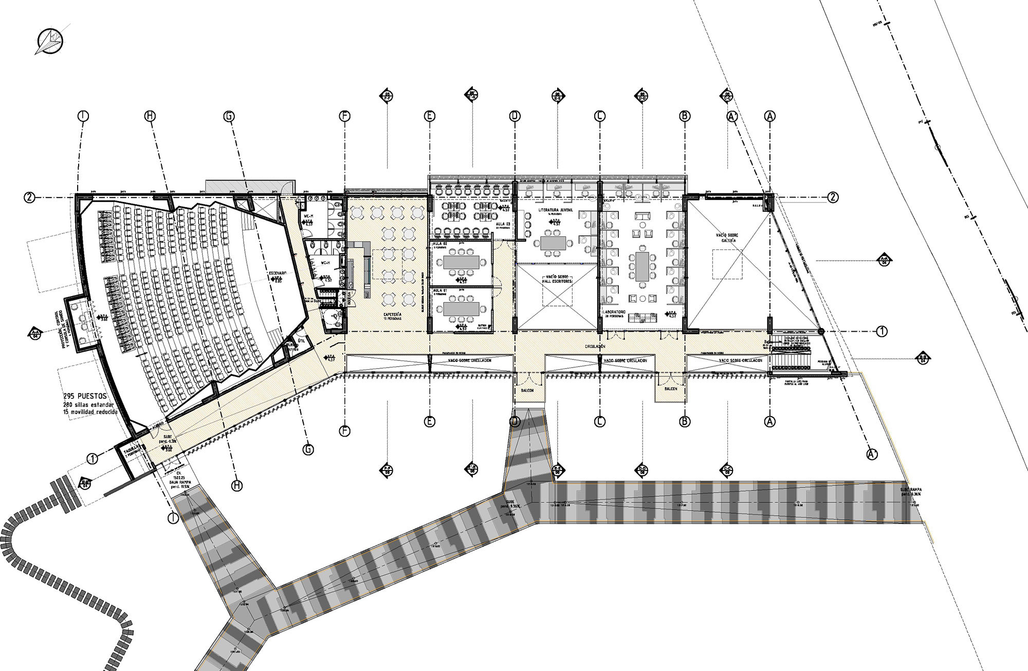
Casa de la Literatura (Medellín-Antioquia) (2019)

Hotel Soul Lifestyle (Medellín-Antioquia) (2016)

Posted by

Exaedro

Category: Comercio y Servicios

Unidad Hospitalaria Buenos Aires (Medellín-Antioquia) (2022)

CONTACTO: Carrera 42 B # 23 A Sur 60 Of. 202 // Envigado – Antioquia – Colombia

TELEFONO PBX: 333-39-93

EMAIL: exaedrotaller@gmail.com – arquitectura@exaedroarquitectura.com

 

Copyright © 2026 · All Rights Reserved ·